让卖家找上门
发布询价>>
您所在的位置:仪器仪表网> 电子元器件>供应三晶恒转矩变频器

供应三晶恒转矩变频器

价 格: 面议

应用范围:空调专用 品牌:三晶 产品系列:SAJ8000 型号:V055G3 额定电压:三相AC380-460(V) 适配电机功率:55(kW) 滤波器:内置1A滤波器 控制方式:V/F闭环 供电电压:低压 电源相数:三相 输出电压调节方式:PWM控制 外型:铁壳 营销方式:代理

好变频*三晶造

三晶高性能矢量变频器,广泛用于各种机械设备行业,现大量供货。

产品特点低频转矩输出180% ,低频运行特性良好
输出频率600Hz,可控制高速电机
全方位的侦测保护功能(过压、欠压、过载)瞬间停电再起动
加速、减速、动转中失速防止等保护功能
电机动态参数自动识别功能,保证系统的稳定性和性
高速停机时响应快
丰富灵活的输入、输出接口和控制方式,通用性强
采用SMT全贴装生产及三防漆处理工艺,产品稳定度高
全系列采用西门子IGBT功率器件,确保品质的高质量
更多描述
应用行业:
自动扶梯线缆机械印染设备化工机械塑料机械油田设备矿山机械设备

SAJ-8000G变频器在自动扶梯中的应用
在不对扶梯的正常使用产生任何负面影响的前提下,引入矢量变频调速的概念。即变频器根据传感器产生的信号,在有人乘坐时,扶梯以原有速度运行(50Hz);当无人时,扶梯减速到低速或停止运行。

系统要求变频器启动运行平稳,加速性能好,启动转矩大,过载能力强,同时应具备当变频器调速系统出现故障时,控制系统自动切换到工频运行,保障扶梯输送功能的正常实施。

对于客用自动扶梯,一般使用高峰期出现在下午及晚间时段,其余时段使用率较低,具有相当节能空间。根据以上改造原则,从投资成本及自动化水平两方面考虑,拟使用以下变频拖动方案:
·采用SAJ-8000G变频器驱动电梯主机,变频器采用多段速控制模式,并设置主频率(低速)、多段速频率1(高速)两种运行频率;
·在电梯首尾处各安装一支红外传感器开关,乘客通过电梯时,红外传感器开关被触发并发出开关信号给变频器;
·有客流时,红外传感开关被触发,变频器立即加速到多段速频率2,并使电梯高速运行;
·电梯高速运行时,变频器内置计时器开始计时,若在计时的时间段内再无乘客通过电梯,计时结束后变频器将自动切换到多段速频率1,进行低速运行;
·若在计时器计时期间,有乘客重新触发光电开关,计时器将重新计时;
·对电梯上行和下行,外围控制采用开关互锁,保证扶梯系统的正常工作;
·为消耗下行,或者制动过程产生的多余能量,需在变频器上加装制动电阻。

采用SAJ-8000G变频器驱动电梯主机,不但能够满足系统启动运行平稳、启动转矩大、过载能力强、转速调节精度高的要求;而且电机通过变频拖动,可减少机械磨损,延长使用寿命,工作更加安全可靠,因为调节电机转速空间大,使得系统节能效果更为显著。

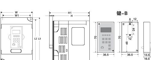
附:安装尺寸(单位:mm)

机型

L

L2

L3

W

W1

H

H1

键盘

机箱

V004G3

237

249

155

144

159

169

C

塑壳

V5R5G3

V7R5G3

V011G3

324

336

354

210

165

164

178

D

铁壳

V015G3

V18R5G3

370

383

406

267

200

210

224

D

铁壳

V022G3

V030G3

437

458

475

295

200

225

239

D

铁壳

V037G3

V045G3

500

522

535

338

253

250

260

D

铁壳

V055G3

553

568

592

332

200

271

285

D

铁壳

V075G3

600

620

646

380

300

300

314

D

铁壳

V093G3

V110G3

895

925

950

472

350

330

344

D

铁壳

V132G3



dzsc/17/7993/17799308.jpg

深圳市亿飞达科技有限公司
公司信息未核实
  • 所属城市:广东 深圳
  • [联系时请说明来自维库仪器仪表网]
  • 联系人: 漆凤
  • 电话:0755-28169936
  • 传真:0755-28169936
  • 手机:
  • QQ :
公司相关产品

代理三晶变频器 施耐德变频器

信息内容:

应用范围:防爆 品牌:三晶 产品系列:SAJ8000 型号:V011G3 额定电压:三相AC380-460(V) 适配电机功率:11(kW) 滤波器:内置1A滤波器 直流电源性质:电压型 控制方式:V/F闭环 供电电压:低压 电源相数:三相 输出电压调节方式:PWM控制 外型:塑壳 营销方式:代理 额定电流:20(A) 电机容量:100(KVA) 国内的变频器生产厂家——三晶变频器,包装机械专用变频调速产品,现在在深圳地区低价销售,欢迎了解和订购。好变频*三晶造

详细内容>>

供应三晶矢量变频器

信息内容:

应用范围:工程型 品牌:三晶 产品系列:SAJ8000 型号:V2R2M3 额定电压:三相AC380-460(V) 适配电机功率:2.2(kW) 滤波器:内置1A滤波器 控制方式:V/F闭环 供电电压:低压 电源相数:三相 输出电压调节方式:PWM控制 外型:塑壳 营销方式:厂家直销 三晶变频器深圳一级代理商,现特价批量销售,欢迎咨询、订购。好变频*三晶造产品特点■采用上下接线方式,结构紧凑,安装方便■矢量控制模式,180% 启动转矩■内置简易PLC功能,RS485通信接口■频率加速、减速时间可达到0.1S■动态性能稳定、反应速度快,适合于频繁起动、正反转场合■变频器与电机匹配使用,无需放大变频器容量 更多描述应用行业:□包装机械□生产流水线设备□环保空调□负压风机□印刷机械□制鞋机械□眼镜机械一、SAJ-8000M变频器在食品包装机中的应用 主机采用SAJ-8000M变频器进行调速。变频器的操作键盘装在操作控制柜上,调速的实现由面板电位器设定运行速度。变频器操作键盘上显示的是电机的转速。转速Rpm=(120×F057输出频率/F052电机极数)×齿轮比例。出厂时,相关参数已经设定好,使用者一般不要修改参数。 追踪系统是包装机的控制核心,由PLC程序控制(见部分主要PLC追踪程序),...

详细内容>>

相关产品